Beschrijving
Let op! De vraagprijs betreft een bieden vanaf vraagprijs.
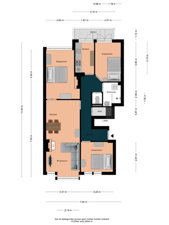
Ruim 3-kamer appartement met balkon op het westen – Stuyvesantstraat, Den Haag
Wonen in één van de meest geliefde wijken van Den Haag, met de gezellige Theresiastraat, openbaar vervoer en volop groen binnen handbereik – dát kan in dit ruime appartement aan de Stuyvesantstraat! Dit lichte appartement van ca. 85,7 m² beschikt over drie slaapkamers, een balkon op het westen waar u heerlijk kunt genieten van de avondzon, en biedt volop mogelijkheden om het geheel naar uw eigen smaak en woonstijl te moderniseren. De ideale woning voor wie graag zijn droominterieur wil realiseren op een plek waar comfort, sfeer en bereikbaarheid samenkomen.
Indeling:
Via het gezamenlijk portiek bereikt u de entree van de woning op de eerste verdieping. Vanuit de ruime hal heeft u toegang tot vrijwel alle vertrekken.
De woonkamer is gelegen aan de voorzijde van de woning en biedt voldoende ruimte voor een gezellige zit- en eethoek. Vanuit de woonkamer bereikt u de hoofdslaapkamer, welke aan de achterzijde is gesitueerd.
Aan de achterzijde bevinden zich tevens de keuken en de tweede slaapkamer. Vanuit zowel de keuken als deze slaapkamer is er toegang tot het balkon op het westen, waar u tot in de avond van de zon kunt genieten. De derde slaapkamer ligt aan de voorzijde.
De hoofdslaapkamer is voorzien van kunststof kozijnen met dubbel glas. De overige kozijnen zijn uitgevoerd in hout met enkel glas. De keuken en badkamer zijn eenvoudig en bieden volop mogelijkheden om te moderniseren naar huidige woonstandaarden.
Buurt & Voorzieningen:
De ligging is zonder twijfel een groot pluspunt. Bezuidenhout is een populaire, groene en vriendelijke wijk met een fijne sfeer en uitstekende faciliteiten:
- Openbaar vervoer (tram, bus én trein) op loopafstand
- De gezellige Theresiastraat met winkels, speciaalzaken, supermarkten en horeca om de hoek
- Station Den Haag Laan van NOI en de uitvalswegen A4, A12 en A13 binnen enkele minuten bereikbaar
- Diverse scholen, speeltuinen en sportvoorzieningen in de nabije omgeving
Pluspunten:
- Woonoppervlakte ca. 85,7 m²
- Drie slaapkamers
- Balkon op het westen, bereikbaar vanuit keuken en 2e slaapkamer
- Eigen grond
- Centrale ligging in het gewilde Bezuidenhout
- Uitstekende bereikbaarheid met zowel OV als auto
- Nabij winkels, horeca, scholen en sportfaciliteiten
- Veel mogelijkheden om naar eigen smaak te moderniseren
Deze woning is ideaal voor kopers die op zoek zijn naar een ruim appartement met potentie op een centrale, groene en geliefde plek in Den Haag.
Interesse?
Maak snel een afspraak voor een bezichtiging en ontdek de mogelijkheden!